1、一、工程概况 二、电梯安装计划 三、荷载统计 1、电梯基础砼自重电梯安装施工方案
:3、电梯最大载荷:4、电梯作业时对基础产生的最大冲击荷载:四、电梯基础施工 1、电梯基础承受的最大压强 2、因电梯基础一部分落在首层板面上,一部分落在室外回填土上,为防止电梯基础因其下部土质不一而发生断裂,在电梯基础内设置长向。
2、八、拆除方案 拆除施工电梯之前,必须对提升机进行一次大检查,特别是对主卷扬机、爬升卷扬机、涡流制动器、断绳保护装置,限位开关等零部件,应从严检查其动作的可靠性和灵敏度,不符合要求的应调整,梯笼升至柱顶,使平衡重落地,然后再慢慢上升50厘米左右,梯笼不发生下滑,然后进行拆卸。其具体步骤按...。
3、旧楼加装电梯解决方案:加装流程:七步流程包括申请人准备协议和方案、向属地乡镇街道申请、街道组织现场踏勘论证、改进概念方案公示、进行建筑结构安全鉴定和专项设计、规划部门组织设计联审并审批许可及方案公示、与住建、消防等部门沟通后施工安装。完工后进行检验、落实管理者,并进行竣工验收和使用登记。常见...。
4、旧小区电梯加装流程 流程七步:申请人准备协议、方案电梯安装施工方案
≥△≤ ;向属地乡镇街道申请;街道组织现场踏勘、论证;改进概念方案公示;进行建筑结构安全鉴定、专项设计;规划部门组织设计联审,审批许可,方案公示;告知街道,与住建、消防等部门沟通,施工安装;完工后检验,落实管理者,竣工验收,使用登记。旧小区电梯加装常...。
5、一、分阶段施工模式(以临夏州为例)临夏州《2025年城市老旧住宅加装电梯实施方案》明确施工需按时间节点推进:基础施工与设备采购(6月底前):完成电梯井道基础开挖、混凝土浇筑及电梯设备招标采购,确保土建结构符合承载要求。钢结构施工与电梯安装(7月底前):搭建电梯井道钢结构框架,同步启动电梯轨道、...。
6、一、旧楼加装电梯施工方案有哪些 筒子楼直达目的层方案,与公共走廊连接,直接进入走廊到目的层,无需机房;紧凑型贴近楼房方案,设置在楼梯口,会占用一部分空间,出电梯是楼梯转角处,需上、下半层楼梯到达目的层;连接平台型方案,设置在楼梯口前方,也要上、下半层楼梯。二、旧楼加装电梯注意事项 1...。
7、规划设计:根据建筑楼层和电梯尺寸,确定轿厢装修设计方案。材料采购:根据设计方案采购所需材料,确保质量和数量符合施工需要。施工准备:清理电梯轿厢内部空间,准备施工工具和设备。施工工艺:进行材料加工、尺寸定制、墙面平整、吊顶安装等施工步骤。此外,施工方案还需包括执行标准、装修范围、技术标要求等内容...。
∩△∩

8、基础和地基要求:应满足使用说明书的要求。对于基础设置在地下室顶板、楼板或其他下部悬挂结构上的施工电梯,应校核基础支撑结构的承载力。安装前检查:安装单位应根据施工电梯基础验收单、隐蔽工程验收单和混凝土强度报告,确认基础、地基承载力、预埋件和基础排水措施符合专项施工方案的要求。检查所有部件,有...。
9、老楼加装电梯廊道设计规范主要包括尺寸、安全要求、材料要求以及施工注意事项等方面,加装电梯的流程包括组建筹备组、专业评估、设计电梯方案、报建审批、施工安装、验收使用及维保管理等环节。尺寸标准:连廊宽度应不小于1.5米,以确保行人和轮椅的顺畅通行。连廊高度不小于2.2米,避免产生压抑感,同时满足...。
10、项目工程师绞尽脑汁,最后大胆地将施工电梯安装在车道剪力墙与两根框架柱之间,采用“T”型钢筋混凝土扁梁结构,作为施工电梯基础的特殊安装方案。二、施工电梯基础设计 1、施工电梯基础设计难点:a、施工电梯如此大的荷载该部位屋面梁板结构无法承受,电梯基础不可能直接做在屋面上;b、该部位三层以下为邮政...。
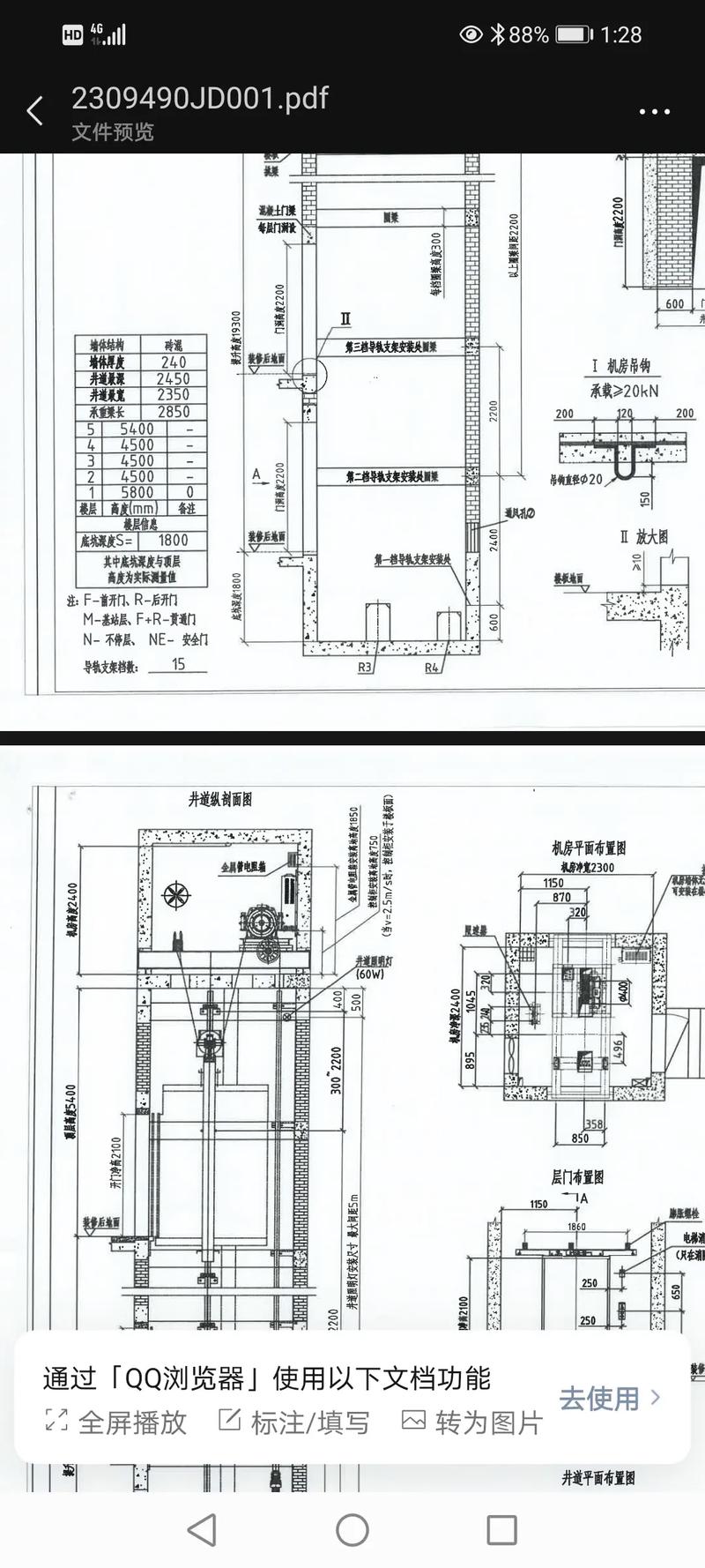
11、附墙件安装布置施工电梯采用Ⅱ型附墙,根据使用手册所示,附墙架之间间距为 3~9m,导轨架的自由高度不大于 7.5m。施工要点:1、在结构施 工过程中,对需 预埋附墙埋件的楼 层,在砼浇筑 前进行埋件预埋;2、将圆管与埋件进行焊接;3、在导轨架上安装两根方管,用螺栓紧固;4、将两根管与附墙座连接;5。
12、专业安装与检测:电梯安装必须遵循相关的安全标准和规范,确保电梯在运行过程中的安全性和稳定性。安装完成后,还需要进行严格的试运行检测,确保电梯的各项功能正常且安全可靠。四、经济性 成本效益分析:在选择电梯安装方案时,还需要考虑其经济性。包括电梯的购置成本、安装成本以及后续的维护成本等。建议...。

13、在实施加装电梯工程时,还需要遵循一系列施工及验收规范。这包括施工前的准备工作、施工过程中的安全措施、施工质量的控制以及工程验收的流程等。例如,施工前需要进行详细的设计和规划,制定施工方案和应急预案;施工过程中需要严格遵守安全操作规程,确保施工人员和周边居民的安全;施工完成后,需要进行全面的...。
14、三、结构安全与审批要点承重评估:委托设计院评估房屋承重能力,避免改动主体结构。1000kg电梯对地基承载力要求比800kg方案高40%,需提前进行技术论证。审批材料:提交房产证、设计图纸、电梯公司资质等材料至规划、消防部门审批,确保方案符合规范。四、费用分摊与方案优化费用构成:包括电梯本体、安装、维护及...。
15、你找个施工方案改一下说行了,要点。流程都有。第一章 电梯工程第一节 电梯安装控制要点1. 搭设在井道内的安装电梯脚手架不同于一般的脚手架,应满足下列三点要求:1) 脚手架必须安全可靠,每平方米承载能力不小于2.5kN,脚手架整个高度的全部重量不能集中在底部,需在中间分段承载。2) 脚手架从上到下,在整个高度...。
